Fundación Rubido Romero

Imaxen principal candidatura
Negreira
Arquitecto
-
Arquitecto Técnico/ Aparexador
-
Promotor
-
Construtor
-
Data de inicio
-
Data de fin
-
PEM
-
Outros técnicos
-
Categorías nas que se presenta
Premio galego de rehabilitación
Imaxes adicionais
Sobre o proxecto

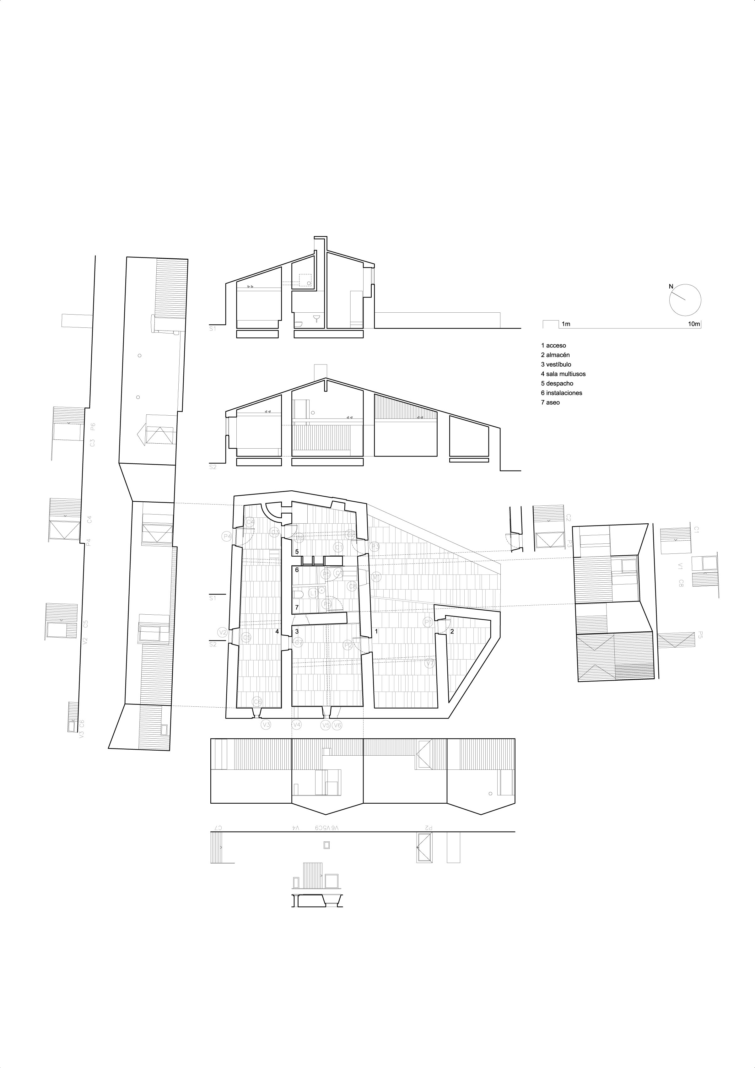
Se nos propone rehabilitar una pequeña construcción tradicional del rural gallego como sede de la fundación. Actuamos con discreción; consolidamos muros, reponemos la cubierta de teja y ubicamos un aseo adaptado. Saneamos y pintamos de blanco el interior, entablamos algunos paramentos y reponemos la carpintería de madera. Reutilizamos las vigas intermedias de madera como soporte de la nueva iluminación. El pavimento de granito y los remates de acero negro barnizado completan la actuación.

 

El nuevo uso público nos impide mantener las dos alturas previas, al ser la inferior, dedicada a cuadras en el pasado, particularmente baja. Así, la zona de acceso adquiere una altura de cuatro metros, quizás más acorde con su nueva función dotacional. Sobre el aseo podemos ubicar la maquinaria de climatización y unificamos la chimenea de ventilación con el lucernario que lo ilumina. Las otras salas pierden altura en función de su adaptación al terreno.

 

Se mantiene el zaguán exterior, interesante en un clima lluvioso como el gallego, con el almacén anejo. La flexibilidad prevista en el resto del inmueble nos permite, con una sencilla intervención, favorecer el uso futuro como pequeño centro de dinamización rural: charlas, exposiciones, ocio, asesoramiento…

Planos