Vivenda sobre o Miño

Imaxen principal candidatura
-
Arquitecto
-
Arquitecto Técnico/ Aparexador
-
Promotor
-
Construtor
-
Data de inicio
-
Data de fin
-
PEM
-
Outros técnicos
-
Categorías nas que se presenta
Premio galego de arquitectura
Imaxes adicionais
Sobre o proxecto

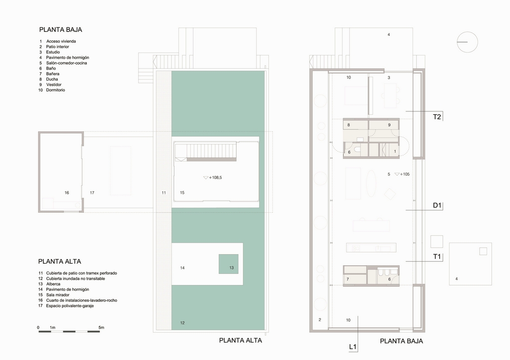
La parcela tiene una gran pendiente orientada al sur que además coincide con las fantásticas vistas sobre el Miño, el acceso por la parte superior genera un espacio de transición formado por 3 piezas: un porche cubierto que sirve como garaje o espacio polivalente, en un extremo, semienterrada , la segunda pieza destinada a los servicios y en tercer lugar , una sala mirador totalmente acristalada que da acceso a la casa en si, que se sitúa semienterrada.

 

La cubierta es una lámina de agua, rodea este mirador, potenciando mas su parte poética de relación con la naturaleza.

 

La casa para una mejor integración en el paisaje se entierra por su parte norte, generando un patio corrido que da luz y ventilación a toda la casa y se abre al rio y al sol por su cara sur, la posición retranqueada del hueco sur protege del sol vertical del verano y permite el calentamiento del sol mas bajo de invierno, además de esta manera la casa se protege visualmente de los vecinos. El salón-comedor-cocina es el espacio principal de la casa con doble orientación sur (vistas y sol) y norte (patio, luz cenital).

Dos núcleos de aseos separan este espacio de día de las zonas mas privadas, en los extremos de la casa.

 

Los 2 dormitorios dan al patio, generando una sensación de protección y tranquilidad.

Aprovechando el sol del poniente y naciente , al oeste se sitúa una sala de juegos y al este con acceso independiente un pequeño despacho.

 

El hormigón es el protagonista, su rotundidad y expresividad se difumina con el encuentro con la topografía y la naturaleza.

 

De una forma mas poética , la casa se podría describir de la siguiente manera:

Una cueva, un ojo mirando el rio, buscando el sol y un patio enterrado dando
luz , ventilación y protección.
El ojo lo suficientemente grande para calentar en invierno y disfrutar del
paisaje, lo suficientemente pequeño para poder cerrarlo y proteger la cueva

Un espacio de transición da acceso a la cueva , lugar de contemplación y
meditación ; agua ,aire , tierra y fuego.
Dentro de la cueva dos bloques de servicios separan el espacio de vida y sol
de las zonas privadas y de descanso protegidas por el patio.

Planos