CASA C. VIVENDA UNIFAMILIAR EN CEE (A CORUÑA)

Imaxen principal candidatura
Avenida de Fisterra, s/n, Cee
Arquitecto
-
Arquitecto Técnico/ Aparexador
-
Promotor
Juán Castiñeira Romero
Construtor
José Manuel Rodríguez Garrido
Data de inicio
Xoves, 12 Novembro, 2015
Data de fin
Luns, 17 Xullo, 2017
PEM
265.529 €
Outros técnicos
  • Ana Leo Fernández
Categorías nas que se presenta
Premio galego de arquitectura
Imaxes adicionais
Sobre o proxecto

 

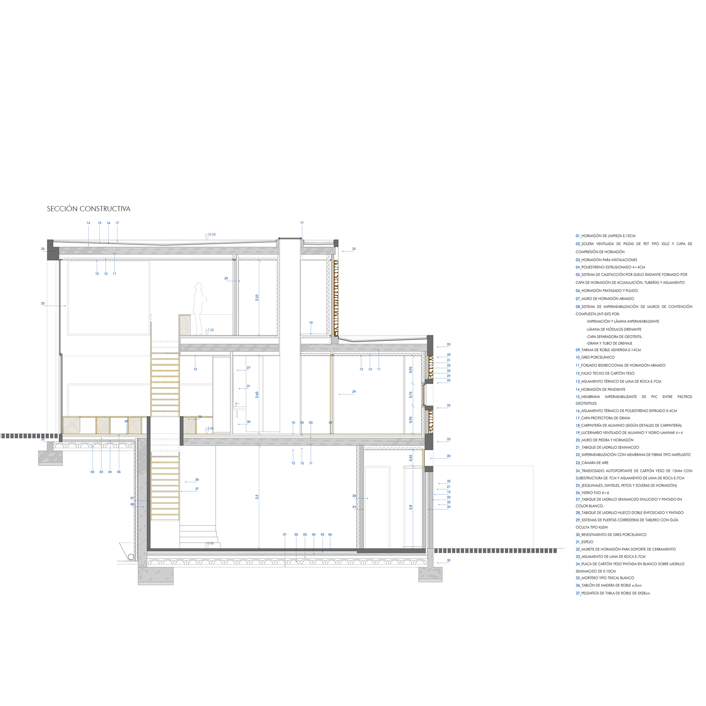
Vivenda situada nun terreo elevado sobre a estrada, mirando ao leste, nunha zona de crecemento do núcleo urbano onde se foron construíndo bloques de vivenda de 4 e 5 plantas. A decisión de non consumir a edificabilidade permitida está relacionada co interese pola propiedade familiar e o mantemento do seu carácter ligado ao xardín e os froiteiros. Polo oeste, o alto noiro dun monte plantado de eucaliptos. A planta baixa mantén a idea de muro pintado, a superior, relaciónase e envorca cara á leira. Dous volumes superpostos, con sistemas construtivos diferentes. Entre os dous, a escaleira, como peza central independente que as enlaza, mesturando a súa  materialidad. O formigón  abujardado exterior, aparece tamén dentro, en  petos e pequenos volumes graduados que serven de apoio a escaleiras e pavimentos de carballo. Fronte á fachada  pétrea e de escasos ocos que dá á estrada, a do xardín é acristalada, deixando que o chan se estenda, pois a boa orientación de tarde, convérteno nun espazo moi agradable para estar.